寻找千万之家
朗途陶瓷全国100个优秀案例征集活动【第二期】正式启动

2023年,朗途陶瓷正式启动「寻找千万之家」全国100个优秀实景案例有奖征集活动,在第一期活动中,我们收到了大量高质量的案例作品,充分展示了朗途陶瓷在家居装饰领域的卓越品质与创新设计。同时,我们也意识到,随着消费者对家居品质和设计感的追求不断提升,市场上对于优秀案例的需求也在持续增长。
家园如梦绘丹青,温馨雅致入诗情。
砖瓦之间藏爱意,窗棂之外映月明。

2024年,朗途陶瓷启动「寻找千万之家」全国100个优秀实景案例有奖征集活动【第二期】,进一步挖掘和展示更多优秀的陶瓷应用案例,为消费者提供更多灵感和选择,同时也为品牌发展注入新的活力。
大赛主题
「寻找千万之家」朗途陶瓷全国100个优秀实景案例有奖征集活动
①【家装案例征集】
②【工装案例征集】
征稿对象
已签2024年经销合同的朗途陶瓷全国经销商
投稿邮箱
参赛作品资料以压缩文件形式:
规范邮件命名“××(店)+作品所属人姓名+案例名称”,提交至朗途陶瓷总部市场部指定邮箱:。
征稿时间
第一阶段:5月1日—12月15日 案例收集
第二阶段:12月16日—12月24日 案例评审
第三阶段:12月25日 公布第二期获奖名单
第四阶段:12月26日 优秀案例推广+发放奖励
【家装案例】投稿要求
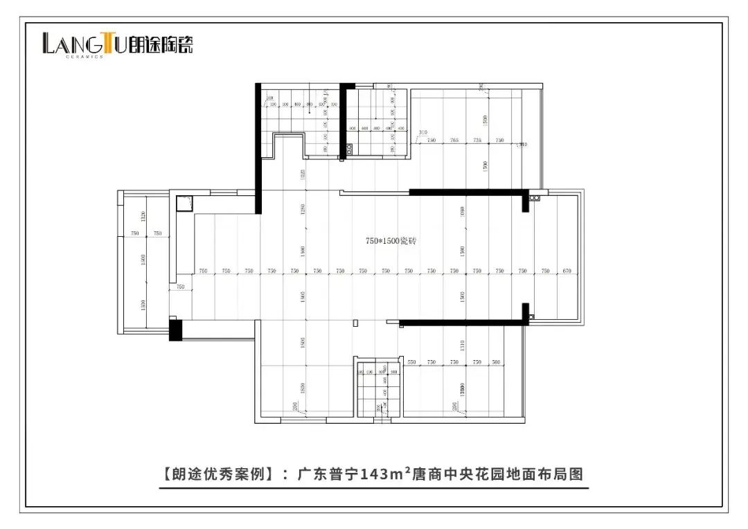
1、尽量提供1张案例空间平面图或户型图,并附1份项目说明文档,含小区楼盘名称、户型面积、设计风格、使用产品的系列与具体编号和大概使用平方数。

示例▲全屋应用平面图

示例▲产品应用户型图
2、相片要求:提供案例空间照片必须清晰看到案例整体场景包括软装和产品铺贴等,照片提供数量为7张以上,产品场景选定为客厅、餐厅、厨房、卫生间、主人房、儿童房、阳台等。图片拍摄需保持画面干净清晰(JPG格式,大于1MB/张)可配合产品特写照。

示例▲客厅应用

示例▲餐厅应用
家装完整案例拍摄参考①:
143m²现代中式实景案例,大两房+落地窗开启低调奢华的品质生活
【工装案例】投稿要求
1、案例类型与规模:我们欢迎各种类型和规模的瓷砖工装案例,包括但不限于商业空间、酒店、餐厅、办公楼、医院、学校等公共区域的瓷砖装修项目。案例应充分体现朗途产品在工装领域的多样性和创新应用。
2、案例资料完整性:请提供完整的案例资料,包括项目背景介绍、设计理念说明、施工过程中的关键节点照片、最终效果图等。资料应清晰、详细,能够全面展示案例的特点和优势。
3、相片要求:提供案例空间照片必须清晰看到案例整体场景包括软装和产品铺贴等,照片提供数量为7张以上。图片拍摄需保持画面干净清晰(JPG格式,大于1MB/张)可配合产品特写照。

示例▲商业大厦走廊应用

示例▲商业员工餐厅应用

示例▲商业接待会议室细节图
评选规则
1、使用朗途陶瓷产品,重点以产品为主,家具饰品为辅(60分)。
2、整体设计是否符合功能需求和审美需求(40分)。
3、比赛结果将在活动结束后在朗途陶瓷微信公众号公布。
4、要求提供的相片:多角度、高清、图片里的物体不能歪、考虑区域整体性和整洁性。
5、已入围第一期作品不再参与第二期评选。凡符合素材条件的皆能评选上入围奖,请大家认真对待、积极参与。
6、提交的案例应为原创作品,严禁抄袭或盗用他人成果。同时,案例资料应真实可靠,不得夸大或虚假宣传。
奖项设置
【入围奖】:成功入选朗途100个优秀案例,均奖励50元/个案例。
【冠军门店1名】:2000元
【亚军门店1名】:1000元
【季军门店1名】:500元
按2024年度参选入围作品数量评选冠亚季门店,并获得相应现金奖励。
———END———
限 时 特 惠: 本站每日持续更新海量各大内部创业教程,永久会员只需109元,全站资源免费下载 点击查看详情
站 长 微 信: nanadh666



